Автоматический котел отопления на сырых опилках и древесных отходах мощностью 800 кВт применяется на предприятиях лесопереработки, деревоперерабатывающих предприятий и в сельском хозяйстве, для сушильных камер, для теплиц, для производства, отопления промышленных помещений и зданий.
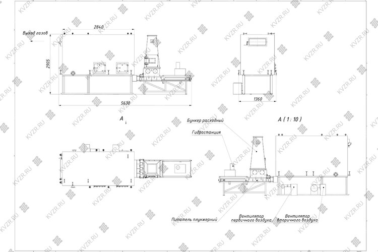
Котел на опилках 800 кВт для отопления изготавливается водотрубным стальным с бункером для сырых опилок, плунжерным питателем, вихревой топкой, котельного блока с топочной камерой для горения опилок и конвективными пакетами для нагрева воды до требуемой температуры.
Котельный блок с вихревой топкой соединяется с плунжерным питателем с бункером. При помощи плунжера производится автоматизированная подача опилок в вихревую топку котла. Совершая ход назад каждый плунжер подхватывает топливо и движением вперед подает его в топку через загрузочное окно. Частота ходов (интенсивность работы) плунжера регулируется при помощи автоматики, в зависимости от характеристик топлива. Топливо попадает на огнеупорную плиту, на которой происходит его сушка и подогрев. Предварительная подсушка позволяет работать с сырыми опилками, без температурных колебаний.
Сжигание дров производится либо с переводом котла в полностью ручной режим работы, либо в качестве закладки дополнительного топлива в процессе основной работы вихревой топки. Для закладки дров в котельном блоке установлена дверца. Топливо укладывается на водоохлаждаемую решетку, где происходит его сгорание. Водоохлаждение топливной решетки защищает ее от деформации и прогорания, продлевая работу котла на длительный период.
Пожаробезопасность обеспечивают клапаны системы пожаротушения, а также приборы контроля давления в системе пожаротушения и температуры топливопровода.
К котельному блоку крепится шнековый питатель с бункером. При помощи блока шнековых питателей производится автоматизированная подача топлива в вихревую топку котла. С помощью автоматики вы можете легко регулировать подачу топлива, управляя скоростью вращения шнековых питателей. Топливо попадает на огнеупорную плиту, на которой происходит его сушка и подогрев. Предварительная подсушка позволяет работать с сырыми опилками, без температурных колебаний. В случае заклинивания шнека, предусмотрено автоматическое включение реверсивного движения. Для полной безопасности предусмотрено воздушное охлаждение выходного узла, препятствующее воспламенению топлива.
Пожаробезопасность обеспечивают клапаны системы пожаротушения, а также приборы контроля давления в системе пожаротушения и температуры топливопровода.
Автоматический котел 800 кВт работающий на опилках с вихревым типом горения максимально экономичен. Вихревая топка сконструирована таким образом, что все мелкие и крупные частицы топлива полностью выгорают. Воздушный поток направляет топливные частицы в центр горения. Вихрь постоянно поддерживает частицы в подвижном состоянии, не давая им спечься и налипнуть на под топки.
Опилочный котел 800 кВт с вихревым режимом горения прекрасно подходит для сжигания очень влажных опилок, до 60 %. Пояс зажигания, который выполнен в топке, постоянно поддерживает высокую температуру, за счет чего происходит интенсивная сушка топлива, быстрое зажигание и стабильное горение.
Топка выполнена газоплотной для исключения присосов холодного воздуха и задымления в котельной.
Бункер теплогенератора на опилках 800 кВт наполняется при помощи конвейера топлива. Особая конструкция бункера исключает сводообразование в следствии сцепления сырых опилок и облегчает разгрузку бункера.
Котел твердотопливный на опилках 800 кВт промышленный работает полностью автоматически. Автоматика осуществляет автоматический розжиг, запуск, работу регулировку давления и остановку котла в случае превышения допустимых параметров работы. Автоматика осуществляет автоматическую подачу топлива с контролем производительности по заданной температуре теплоносителя. Подача воздуха осуществляется в зависимости от объема поданного древесного топлива. В котле с автоматической подачей опилок предусмотрена система пожаротушения в случае воспламенения топлива в топливопроводе.
Комплект автоматики состоит из щита управления котлом, контрольно измерительных приборов КИП и исполнительных механизмов.
Промышленный котел на опилках мощностью 800 кВт работает с автоматикой, включающей в себя контроль и регулировку следующих параметров:
На случай возникновения необходимости сжигания дополнительно крупногабаритных древесных отходов, автоматика может переключиться в ручной режим работы и подача древесных отходов осуществляется вручную кочегаром через загрузочную дверку.
Подключение и монтаж промышленного котла, который работает на древесных опилках мощностью 800 кВт производятся по проекту.
В зависимости от количества котельных агрегатов, наличия или отсутствия теплообменников существуют различные варианты схем подключения котла.
Комплектация котла на опилках на твердом топливе включает в себя:
Автоматика приобретается отдельно, ее рекомендуется заказать по техническому заданию, с учетом ваших пожеланий.
Купить котел 800 кВт на опилках и все необходимое для его подключения вы можете на нашем заводе. Также наш завод оказывает услуги по проектированию, монтажу, шеф монтажу и пуско-наладке котельных.
На заводе изготовителе отопительный российский котел 800 кВт на сырых опилках подвергается гидравлическому испытанию давлением 0,9 МПа (9 кгс/см2).
Срок эксплуатации отопительного котла на опилках 10 лет. Наш котел может рассматриваться как аналог котлов Гефест на опилках, бийских и ковровских котлов Гейзер termowood, Гейзер biomasse, Гейзер energy российского производства, котлов серии КМП, bio vulkan pro, firewood, а также таких производителей как котельный завод Экодрев Тверь, Автоматик Лес, Ирбис. Действующая цена на котел на опилках 800 кВт указана на сайте, производство котлов по техническому заданию завод осуществляет в течении 10-20 рабочих дней.
Цена водогрейного котла на опилках 800 кВт в Кургане включает в себя котельный блок в изоляции, вихревую топку для эффективного сжигания опилок, систему подачи топлива с бункером, вентили, затворы, манометры, термометры, вентилятор поддува и предохранительные клапаны. Ниже приведена подробная информация.
Для эффективной и надежной работы котла на опилках 800 кВт в вашей котельной вам потребуется дополнительное оборудование - автоматика ЩУК, дымосос, насос сетевой и подпиточный, золоуловитель (по желанию), большой бункер для древесных отходов, транспортеры. газоходы и переходники для газового тракта, дымовая труба. Мы предлагаем рассмотреть типовые варианты комплектации.
В случае если у вас на объекте уже имеется насосное и тягодутьевое оборудование, мы можем проверить совместимость котла на опилках 800 кВт нашего производства и вашего оборудования.
Можем изготовить нестандартные узлы для выполнения быстрого монтажа котла - газоходы и узлы обвязки.
Типовую схему монтажа котла вы можете посмотреть во вкладке схемы подключения и монтаж.
Щит управления котлом на древесных отходах с таймером
Выполняет ручное и автоматическое управление:
Контролирует:
Предупреждает об аварийной ситуации при работе котла с помощью световой и звуковой сигнализации.
Выполняет ручное и автоматическое (через частотные преобразователи) управление:
Водогрейный твердотопливный стальной отопительный котел 800 кВт на опилках, предназначен для получения горячей воды номинальной температурой на выходе из котла от 95 до 115 °С рабочим давлением до 0,6 (6,0) МПа (кгс/см), используемой в системах централизованного теплоснабжения на нужды отопления, горячего водоснабжения. Устанавливается в производственных, промышленных и отопительных котельных.
Водогрейные котлы производства Котельный завод "РЭП" соответствуют строгим стандартам качества и безопасности. Завод производит котлы в соответствии с требованиями ГОСТ 30735-3001 по Техническим Условиям завода.
Котлы имеют сертификаты соответствия Техническим регламентам Таможенного союза:
Обзор котла на опилках и щепе большой мощности производства Котельный завод "РЭП"
Обзор работы котла на опилках с вихревой топкой производства Котельный завод "РЭП"

Отзыв о работе котла КВр производства Котельный завод "РЭП", проработавшего на АО "Водоканал" г. Белокуриха 10 лет. Интервью предоставил заместитель главного директора по производству Суходоев Сергей Николаевич.

Интервью с главным энергетиком базового комплекса "Сводор" г. Барнаул о работе водогрейного котла нашего производства, отапливающего предприятие с 2008 года.
Котельный завод производит котел для отопления на сырых древесных опилках мощностью 800 кВт для производства, сушильных камер, теплиц и промышленных твердотопливных водогрейных котельных.
Подобрать мощность котла по площади важно учитывая не только площадь и объем здания, но и тип зданий и климатические данные региона.
На нашем сайте калькулятор расчета мощности котла учитывает тепло, требуемое на возмещение тепловых потерь через строительные конструкции и потери, вызываемые инфильтрацией (проникновением) наружного воздуха, через их неплотности и периодически открываемые двери.
Наружный строительный объем здания должен определяться умножением площади горизонтального сечения, взятого по внешнему обводу здания на уровне первого этажа на полную высоту здания, измеренную для панельных зданий: от уровня чистого пола (нулевой отметки) до верхней плоскости теплоизоляционного слоя чердачного покрытия, для остальных строений от уровня земли.
Расчетная температура воздуха в отапливаемых зданий принимается в зависимости от типа и назначения здания:
В случае если требуется отопление различных по типу зданий, теплопотребление каждого считается отдельно, полученные значения складываются и подобрать мощность котла нужно в соответствии с общей суммарной мощностью каждого отдельно стоящего задания.
Климатические условия вашего региона принимаются в соответствии с СП 131.13330 Строительная климатология. Данные по всем регионам России занесены в наш калькулятор расчета мощности котла.
Подобрать мощность котла по площади с учетом потребностей объекта в тепле на вентиляцию и горячую воду возможно только с более детальным расчетом. Его вы можете заказать в отделе сбыта котельного завода отправив заявку на электронный адрес sb@kvzr.ru или позвонив по телефонам (38-52) 29-97-41, 29-97-42.