string(4) "3157"

Паровой котел на отработке 500 кг / 0.5 т пара -115 °С -0,07 МПа / 0,7 кгс/cм² в Кургане

Версия
для печати
В наличии на складе Цена в рублях с НДС 871 000
Получите скидку
у менеджера
Цена на паровой котел на отработке 500 кг / 0.5 т пара -115 °С -0,07 МПа / 0,7 кгс/cм² с доставкой от 871 000 рублей с НДС
Производительность, кг/ч500
ТопливоЖидкое, Отработанное масло
Температура пара, не более, °C115
Давление пара, не более, МПа0.07
Доставка ТК в г. Курган и по России
Безналичный расчет
Опросный лист
Эту продукцию можно
купить в лизинг
  • Технические
    характеристики
  • Описание
    товара
  • Комплект
    поставки
  • Дополнительно
    потребуется
  • Подключение и
    монтаж
  • Сертификаты и
    гарантии
  • Отзывы о
    продукции
  • Видео
    обзор

Паровые котлы STEAMEXPERT

Эффективность, надежность, удобство

  • Высокое КПД: Поперечное омывание и шахматное расположение труб обеспечивают максимальную теплопередачу.
  • Максимальная надежность: Конструкция без трубных досок и дымогарных труб исключает риск трещин и порывов.
  • Стабильный сухой пар: Большой водяной объем и эффективный сепаратор гарантируют пар стабильных параметров даже при переменных нагрузках и подпитке холодной водой.
  • Простое обслуживание: Самоочистка внутренних поверхностей от шлама и паровая продувка снаружи без остановки котла.

Технические характеристики парового котла КП 500 на отработке

Тип Паровой котел КП
Вид топки Горелка на отработанном масле
Конструкция котла Жаротрубный
Производительность, кг/ч 500
Производительность, т/ч 0.5
Максимальная тепловая мощность, МВт 0.37
Диапазон регулирования мощности, % 40-100
Топливо Жидкое, Отработанное масло
Низшая теплота сгорания проектного топлива, кКал/кг 9260
КПД котла на ОТРАБОТКЕ, не менее, % 80
Расход ОТРАБОТАННОГО МАСЛА при максимальной нагрузке котла, кг/ч 38
Расход условного топлива, кг/ч 50
Температура пара, не более, °C 115
Давление пара, не более, МПа 0.07
Давление пара, не более, (кгс/см²) 0.7
Давление пара, не более, бар 0.7
Полный объем котла, м³ 1.75
Объем паровой части, м³ 0.15
Аэродинамическое сопротивление, Па (мм. вод. ст.) 20 (2.0)
Тяга Естественная
Объем топочной камеры, м³ 0.67
Размер топочной камеры, диаметр*глубина, мм 800х1335
Присоединительные размеры выхода пара, Ду 65
Присоединительные размеры по водяному тракту, Ду 25
Присоединительные размеры по дымовым газам / диаметр дымовой трубы, мм 250
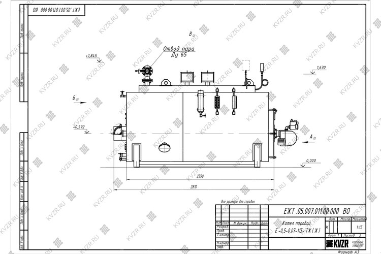
Габаритные размеры котла, длина*ширина*высота, мм 3850х1450х1650
Масса, кг 1500
Марка STEAMEXPERT
Энергоэффективность Высокая
Бренд STEAMEXPERT

Паровой жаротрубный котел КП 500 на отработке в Кургане

Котел паровой КП 500 на отработке предназначен для получения насыщенного пара температурой не более 115 °С и давлением не более 0,07 (0,7) МПа (кгс/cм²) на технологические процессы в животноводстве, птицеводстве (тепловая обработка кормов, пастеризация молока и т. п.) и для других тепловых нужд в хозяйстве. Их используют также строительные организации, воинские части, мясокомбинаты, консервные заводы, автоколонны, ДСУ, хлебозаводы, мелькомбинаты, маслосырзаводы, птицефабрики, свинокомплексы, в нефтегазовой промышленности.

Производительность котла - 500 кг/ч, мощность 0,37 МВт.

Наш котельный завод также производит паровые котлы производительностью 500 кг/ч с другими давлениями и температурой.

Паровые котлы 0.5 т 0,07 МПа 115 ºС на отработке марки STEAMEXPERT имеют следующие преимущества

    • Исключен вынос капель воды с технологические трубопроводы благодаря большой поверхности испарения и наличию сепаратора пара
    • Стабильная непрерывная выработка пара требуемых параметров при любой нагрузке благодаря большой паросборной камере - до 15 % от общего объема
    • Высокая скорость образования пара благодаря эффективной конвективной части котла
    • Возможность подпитки котла холодной водой +5°С благодаря большому водяному объему и отсутствию температурных колебаний в трубной системе
    • Повышенная надежность конструкции благодаря отсутствию неравномерных температурных расширений в жаровой трубе и трубной части теплообменника
    • Внешние поверхности нагрева очищаются паром без остановки котла
    • Внутренние поверхности нагрева не имеют горизонтальных участков и позволяют дренировать и очищать котел от выпадающего в процессе работы шлама без остановки парообразования

Устройство паровых котлов КП 500 на отработанном масле

Котел паровой КП 500 на отработанном масле представляет собой одножаровую горизонтальную конструкцию и состоит из двух цилиндров разного диаметра, вставленных один в другой и соединенных между собой фланцами и паросборником. Цилиндры изготовлены из листовой стали, диаметр внутреннего равен 900 мм, а наружного 1260 мм. В передней части жаровой трубы размещена топка, а в задней части - конвективный пучок труб.

К фронтовой стороне котлоагрегата крепится фронтовая плита, имеющая крепление для установки дизельной горелки. Для управления и защиты агрегата и вспомогательного оборудования предусмотрены автоматизация - пульт управления и контрольно-измерительные приборы, сигнализирующие об отклонении регулируемых параметров агрегата и его неисправности. Физический принцип действия котельной установки основан на сжигании топлива в топке котла и дальнейшая передача тепловой энергии сгоревшего топлива при помощи теплообменника теплоносителю. Удаление продуктов сгорания происходит через сборную дымовую трубу.

Котел паровой КП 500 на отработке

В принцип работы котлов паровых жаротрубных КП 500 на отработке положен теплообмен между дымовыми газами и водой. Топливо сгорает в топочной части агрегата, окруженной водяной охлаждаемой рубашкой. Дымовые газы проходят через трубный пучок и выходят в верхней его части. Трубный пучок соединяет верхнюю и нижнюю часть водяной рубашки. Теплоноситель образуется при испарении нагреваемой воды и собирается в верхней части котлоагрегата, над которой выполнена сборная камера, далее направляется потребителю на технологические нужды.

Комплектация

Жидкотопливные паровые котлы на отработке КП 500 комплектуются манометром, водомерной колонкой с водомерным стеклом, двумя предохранительными клапанами, паровыми и продувочными вентилями.

Агрегат работает с российской горелкой на отработанном масле мощностью 500 кВт, либо с импортной горелкой фирмы UNIGAS - модели LO 280; LO 400; PG 30. В состав автоматизированной горелки входит устройство автоматического контроля пламени, устройство и механизм модулируемого регулирования мощности горелки. Стоимость горелки не включена в стоимость котлоагрегата.

Дополнительная комплектация

  • автоматика;
  • насос - подбирается в зависимости от гидравлической схемы объекта.

Подключение и монтаж

Котел паровой на отработке КП 500 поставляется блоками максимальной заводской готовности. Котельный блок устанавливается в котельной на специально подготовленную ровную поверхность. Котлоагрегат подсоединяется по воде, устанавливается запорная арматура на подводящем трубопроводе и отводящем паропроводе, устанавливаются предохранительные клапаны и контрольно измерительные приборы.

На фронтовую плиту крепится горелка, подключаемая к топливопроводу. Монтируется газоход. Подключается котельная автоматика.

Для перевода агрегата в водогрейный режим достаточно изменить схему подключения.

Купить паровой котел КП 500 на отработке

Для того чтобы купить котел паровой КП 500 на отработанном масле в Кургане, вы можете оформить заявку в отделе сбыта по телефону (38-52) 29-97-41 (42) либо оформить заявку онлайн. Наши менеджеры дадут консультацию по подбору вспомогательного оборудования для выбранной вами модели и рассчитают стоимость доставки до вашего региона и населенного пункта.

Дополнительное вспомогательное оборудование для работы парового котла КП 500 на отработке

Для эффективной и надежной работы парового котла КП 500 на отработке в вашей котельной вам потребуется дополнительное оборудование - автоматика ЩУК, горелка импортного или отечественного производства, насос сетевой и подпиточный, регулятор давления газа (по необходимости), газоходы и переходники для газового тракта, дымовая труба. Мы предлагаем рассмотреть типовые варианты комплектации.

В случае если у вас на объекте уже имеется насосное и горелочное оборудования, мы можем проверить совместимость парового котла КП 500 на отработке нашего производства и вашего оборудования.

Для проверки соответствия подпиточной воды для котлоагрегата требованиям к питательной воде, направьте нам химический анализ воды, в случае необходимости ее корректировки мы предложим вам систему водоподготовки котловой воды.

Можем изготовить нестандартные узлы для выполнения быстрого монтажа котла - газоходы и узлы обвязки.

Типовую схему монтажа котла вы можете посмотреть во вкладке схемы подключения и монтаж.

Автоматика выполняет следующие функции:

  • ручной пуск и автоматическую остановку котла;
  • аварийную остановку котла с индикацией причины аварии и подачей звукового сигнала;
  • исключает пуск парового котла при выходе за пределы аварийных параметров;
  • автоматически поддерживает заданное давление в барабане котла;
  • осуществляет контроль рабочего уровня воды в барабане котла между отметками верхнего и нижнего рабочего уровня;
  • автоматически производит пуск/остановку питательного насоса и световую индикацию о критически низком (упуск) или критически высоком (перелив) уровне воды;
  • отключает подачу топлива в случае погасания факела в топке котла.
Цена 150 000 рублей с НДС

Многотопливная горелка на отработке 300 кВт работает в полностью автоматическом режиме. Аппараты для подачи топлива устанавливаются на любой отопительный теплоагрегат или парогенератор. Аппарат легко крепится на оборудование с помощью универсального фланца.

Используется в качестве питательного насоса в производственных паровых котельных

Цена 38 900 рублей с НДС

Разрабатывает индивидуально на основе химического анализа воды потеребителя

Производим газоходы по индивидуальному заказу согласно схеме компоновки котельной. Системы газоходов могут включать в себя:

  • шиберы;
  • газоходы различного сечения;
  • переходы;
  • тройники;
  • карманы всасывающие дымососов.

Схемы подключения и монтаж парового котла КП 500 на отработке

Жаротрубный паровой котел на отработке 500 кг / 0.5 т пара -115 °С -0,07 МПа / 0,7 кгс/cм², предназначен для получения насыщенного пара для технологических целей в производстве. Устанавливается в производственных и промышленных котельных.

Схема подключения и монтажа
Смотреть
Скачать

Схема подключения и монтажа

Монтаж парового котла КП 500 на отработке в котельной должен производиться в соответствии с проектом и с учетом требований Свода правил СП 89.13330. 2016 «Котельные установки» и «Правил устройства и безопасной эксплуатации паровых котлов с давлением пара не более 0,07 МПа (0,7 кгс/см2), водогрейных котлов и водоподогревателей с температурой нагрева воды не выше 388 К (115 С)». Правильный монтаж котла – залог его надежной и долгой работы.

Чтобы правильно подключить паровой котел на отработке 500 кг / 0.5 т пара -115 °С -0,07 МПа / 0,7 кгс/cм² в котельной необходимо оставить проемы для обслуживания оборудования во время эксплуатации. На представленной здесь схеме обозначены их размеры. Кроме того, в данной примерной схеме монтажа паровых котлов и оборудования указан перечень минимально необходимого вспомогательного оборудования.

К вспомогательному оборудованию при подключении промышленного парового котла относят - щит управления котлом, питательные насосы (1 рабочий, 2 резервный), бак запаса воды, горелочное устройство, охладитель проб отбора воды, систему водоподготовки котловой воды, дымовую трубу, систему газоходов (по проекту).

В случае если подпиточная вода не соответствует по своим характеристикам требованиям к питательной воде, необходимо предусмотреть систему водоподготовки котловой воды.

Система питания котла
Смотреть
Скачать

Система питания парового котла КП 500 на отработке

При работе котла питание водой парового котла КП 500 на отработке производится через штуцер.

Подпитка котла ведется из питательного бака через насос, соединительную арматуру. На трубопроводе подпитки котла водой должно быть установлено запорное устройство и обратный клапан. Запорное устройство должно располагаться между котлом и обратным клапаном.

Для подпитки устанавливается не менее двух насосов с электроприводом. На стороне нагнетания каждого центробежного насоса до запорного органа должен быть установлен обратный клапан.

На трубопроводе выдачи пара, в непосредственной близости от котла, устанавливается запорное устройство.

На котле имеются продувочные штуцера Ду25, Ду15 и Ду10. Штуцер Ду25 предназначен для удаления шлама, образующегося в результате работы котла, периодической продувки котловой воды и для спуска воды в случае необходимости. Штуцер Ду15 предназначен для продувки водомерной колонки. Штуцера Ду10 предназначены для продувки указателей уровня.

В передней части жаровой трубы в верхней части установлена легкоплавкая пробка – предохранительное устройство прямого действия.

На боковой части корпуса устанавливается датчик уровней воды, связанный с паровым и водным пространством котла соединительными трубками не менее Ду25.

На боковой части корпуса устанавливается соединительная труба (колонка), служащая для установки двух указателей уровня, и связанная с паровым и водным пространством котла соединительными трубками не менее Ду25.

На боковой части корпуса внизу у котла имеется ревизия с крышкой, для периодического осмотра состояния поверхностей нагрева со стороны водяного объема.

Схема парового котла КП 500 на отработке
Смотреть
Скачать

Схема парового котла КП 500 на отработке

В передней части жаровой трубы размещена топка, а в задней части - конвективный пучок труб.

В верхней части котла приварен паросборник, представляющий собой полуцилиндр. На паросборной камере устанавливаются предохранительные клапаны и два штуцера Ду15, один для установки электроконтактного манометра, второй для спуска воздуха с котла при заполнении водой при подготовке к работе.

К фронтовой плите котла крепится дизельная горелка для подачи топлива в топку котла через амбразуру.

На задней крышке в основании дымовой трубы выполнен предохранительный взрывной клапан.

Образующиеся в топочной камере продукты сгорания проходят конвективный пучок труб и выводятся через трубу дымовую, установленную на корпусе в хвостовой части котла.

Отвод пара парового котла КП 500 на отработке
Смотреть
Скачать

Отвод пара парового котла КП 500 на отработке

Предохранительные клапаны предназначены для стравливания давления в котле при превышении допустимого значения. На котле установлено самопритирающиеся предохранительных клапана пропускной способностью не менее часовой производительности котле.

Принцип работы клапана состоит в том, что при достижении паром номинального давления избыток пара выходит наружу. Клапана оборудованы ручным приводом для открывания при проверке их на срабатывание.

Щит управления совместно с электрооборудованием предназначен для управления работой парового котла КП 500 на отработке и защиты его при возникновении аварийных ситуаций. На двери щита расположены сигнальная лампа и органы управления работой котла, с табличками, указывающими их назначение. По месту либо на стенке щита крепится сигнальная сирена.

На паросборной камере устанавливается один электроконтактный манометр. При монтаже манометра, показывающего давление пара в котле, должна быть предусмотрена установка трехходового крана между манометром и сифонным устройством. Допускается установка других устройств, позволяющих контролировать показания рабочего манометра, путем подключения в систему контрольного манометра. Электроконтактный манометр выполняет роль датчика давления и предназначен для отключения дутьевого вентилятора и включения аварийной сигнализации при достижении паром предельно допустимого давления.

Датчик уровней служит для подачи команды на включение и отключение питательного насоса котла в процессе работы.

Указатель уровня воды предназначен для визуального контроля за уровнем воды при работе котла. На корпусе указателя крепится рамка или наносятся метки, указывающие верхний и нижний уровень воды.

Легкоплавкая пробка предназначена для сброса пара во внутренний объем топочной камеры в случае упуска воды ниже аварийного уровня и достижения фактического уровня воды на работающем котле ниже верхней кромки жаровой трубы. При этом легкоплавкая пробка перестает охлаждаться котловой водой и нагревается до температуры газов в топочной камере. Из-за нагрева наполнитель легкоплавкой пробки плавится и выдавливается давлением пара в топочную камеру, при этом сбрасывается давление пара и дополнительно гасится пламя.

Дополнительные услуги

Сертификат и качество парового котла КП 500 на отработке

Паровые котлы производства Котельный завод "РЭП" соответствуют строгим стандартам качества и безопасности. Завод производит паровые котлы в соответствии с требованиями ГОСТ 30735-3001 по Техническим Условиям завода.

Котлы имеют сертификаты соответствия Техническим регламентам Таможенного союза:

  • ТР ТС 032/2013 «О безопасности оборудования, работающего под избыточным давлением».

Жаротрубный паровой котел на отработке 500 кг / 0.5 т пара -115 °С -0,07 МПа / 0,7 кгс/cм² имеет гарантийный срок 24 месяца и срок работы при соблюдении правил монтажа и эксплуатации оборудования 10 лет.

Сертификат на котлы паровые КП .jpg
Сертификат на паровые котлы КП
Товарный знак на котлы паровые STEAMEXPERT .jpg
Товарный знак на паровые котлы STEAMEXPERT

Отзывы о продукции

Отзыва о товаре пока нет, будьте первыми!

Паровые котлы КП 500 на отработке предназначены для получения насыщенного пара температурой не более 115 °С и давлением 0.07 МПа на технологические процессы в животноводстве, птицеводстве, свинокомплексах, на хлебозаводах, мелькомбинатах, мясокомбинатах, консервных заводах и маслосырзаводах, также их используют строительные организации, воинские части, автоколонны, ДСУ, в нефтегазовой промышленности и др.

Смотреть видеообзор на

Вопрос-ответ

  • Технические
    характеристики
  • Описание
    товара
  • Комплект
    поставки
  • Дополнительно
    потребуется
  • Подключение и
    монтаж
  • Сертификаты и
    гарантии
  • Отзывы о
    продукции
  • Видео
    обзор
Документы завода
  • Сертификаты завода
  • Членство в СРО
  • Аттестованная технология сварки
  • Патенты на котельное оборудование
  • Товарные знаки
Смотреть все документы
Сертификат на водогрейные котлы на твердом и жидком топливе
Сертификат на водогрейные котлы на газе и жидком топливе
Сертификат на котлы отопительные паровые КП
Сертификат на топки
Сертификат на щиты управления
Сертификат на скиповые подъемники
Сертификат на золоуловители (циклоны)
Сертификат на конвейеры скребковые
Сертификат на дробилки
Сертификат на клапаны предохранительные
Сертификат на бункер-накопитель механизированный
Сертификат на автоматику газовых горелок
Сертификат о происхождении товара форма СТ-1
Членство в СРО
Членство в СРО
Аттестованная технология сварки
Свидетельство аттестованной технологии сварки
Патент на отопительный котел
Патент на водогрейный котел
Патент на топку водогрейного котла
Патент на водогрейный газовый котел
Патент на водогрейный котел
Патент на топочное устройство твердотопливного котла
Патент на водогрейный котел
HEATEXPERT товарный знак
KVZR товарный знак
STEAMEXPERT товарный знак
Другая похожая продукция
Котел КПр 500
Лизинг
Производительность, кг/ч500
ТопливоТвердое, Уголь
Температура пара, не более, °C110, 115
Давление пара, не более, МПа0.07
790 000 р. Цена с НДС
Котел КПа 500
Лизинг
Производительность, кг/ч500
ТопливоГаз
Температура пара, не более, °C115
Давление пара, не более, МПа0.07
622 000 р. Цена с НДС
Котел КПа 500
Лизинг
Производительность, кг/ч500
ТопливоЖидкое, Дизель
Температура пара, не более, °C115
Давление пара, не более, МПа0.07
622 000 р. Цена с НДС
Котел КПа 500
Лизинг
Производительность, кг/ч500
ТопливоЖидкое, Дизель
Температура пара, не более, °C170
Давление пара, не более, МПа0.9
826 000 р. Цена с НДС
Котел КПа 500
Лизинг
Производительность, кг/ч500
ТопливоДизель
Температура пара, не более, °C130
Давление пара, не более, МПа0.17
687 000 р. Цена с НДС
Вы просматривали эти товары
Котел КПа 500
Лизинг
Производительность, кг/ч500
ТопливоЖидкое, Отработанное масло
Температура пара, не более, °C115
Давление пара, не более, МПа0.07
871 000 р. Цена с НДС
Котел на древесных отходах
Вид топкиРучная, Подовая
Максимальная тепловая мощность, кВт350
ТопливоТвердое, Дрова, Древесные отходы естественной влажности
Отапливаемая площадь, м²2600-3900
545 000 р. Цена с НДС
Котел 150 кВт дизельный
Вид топкиДизельная горелка
Максимальная тепловая мощность, МВт0.15
ТопливоДизель, Жидкое
Отапливаемая площадь, м²900-1650
254 000 р. Цена с НДС
Котел на древесных отходах
Лизинг
Вид топкиРучная, Подовая
Максимальная тепловая мощность, кВт1000
ТопливоТвердое, Дрова, Древесные отходы естественной влажности
Отапливаемая площадь, м²7700-11000
894 000 р. Цена с НДС
background